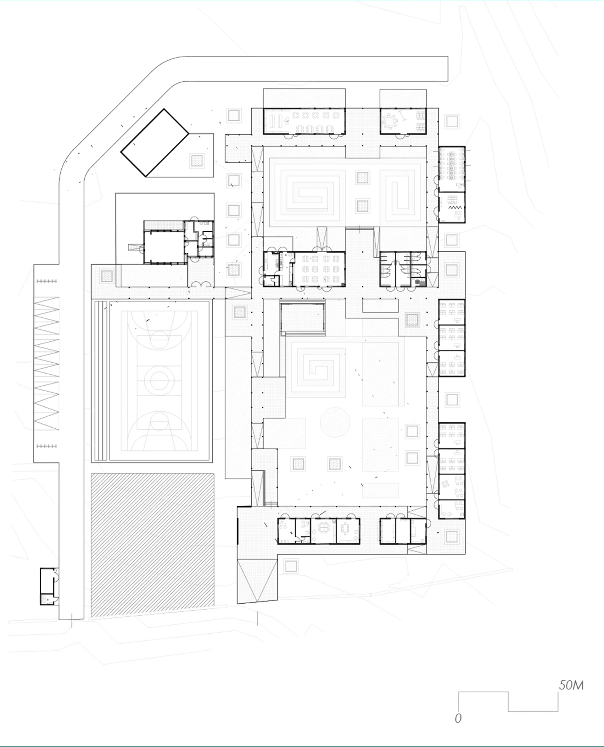
El Colegio Rural San Antonio de la Villa de Barraza se concibió desde un esquema ortogonal que organiza el programa educativo en torno a dos patios centrales, configurando un plano simple de núcleos de circulación y aulas perimetrales. Cada uno de estos patios funciona como un espacio de aprendizaje al aire libre, mientras que los corredores cubiertos —abiertos hacia el interior de estos vacíos— y aquellos adosados a los volúmenes de hormigón armado facilitan el tránsito protegido y refuerzan la conexión visual entre los distintos sectores. El eje tectónico de aulas y servicios se quiebra levemente para enmarcar vistas al valle agrícola y, en su costado poniente, se sitúa el gimnasio vinculándose con los patios del colegio.
Las cubiertas sinuosas abrazan la silueta de las montañas distantes, moderando la captación de aguas lluvias y dando movimiento a su silueta. Las fachadas de las aulas, con ventanales continuos de extremo a extremo, potencian la horizontalidad y controlan el asoleamiento directo, enmarcando las vistas del contexto natural.
Relación con el paisaje y sostenibilidad hídrica
El paisaje, entendido no sólo como telón de fondo, sino como material activo del proyecto, se resuelve mediante un tratamiento vegetal de especies endémicas y de bajo consumo hídrico. Este paisajismo sostenible se articula tanto en la plataforma base como en la envolvente del edificio, incorporando una doble piel vegetal en las fachadas ponientes para mitigar la radiación solar, y generar un microclima habitable que favorezca el confort térmico pasivo. La cubierta transitable y ajardinada se plantea como mirador hacia el Océano Pacífico, consolidando una relación contemplativa con el territorio costero.
Actualmente, cerca de 120 estudiantes de 1° a 8° básico utilizan diariamente estos patios y aulas, mientras docentes y asistentes han incorporado los espacios exteriores en talleres de ciencias, murales colectivos y actos cívicos. La comunidad local ha hecho suyo el colegio, celebrando desde aniversarios escolares hasta festivales culturales en el anfiteatro informal del gimnasio, validando así la apuesta de un diseño que, en su aparente rigidez ortogonal, se despliega con gran flexibilidad programática y un profundo diálogo con el paisaje rural de Villa Barraza.
